


PROJECT OVERVIEW
Background
Existing Facility History
Goals and Objectives
The Schematic Design Process
The Phase 4a Plan
Site Planning

MASTER SITE PLAN

MASTER LOWER FLOOR PLAN

MASTER MAIN FLOOR PLAN

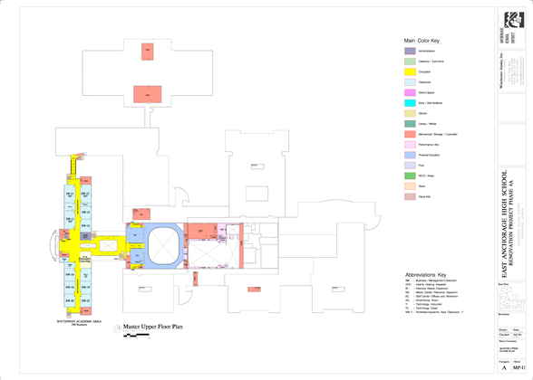
MASTER UPPER FLOOR PLAN

MASTER ACADEMIC AREA PLAN

MASTER PHASING PLAN

ORIGINAL SITE PLAN

PHASES 1, 2, & 3 SITE PLAN

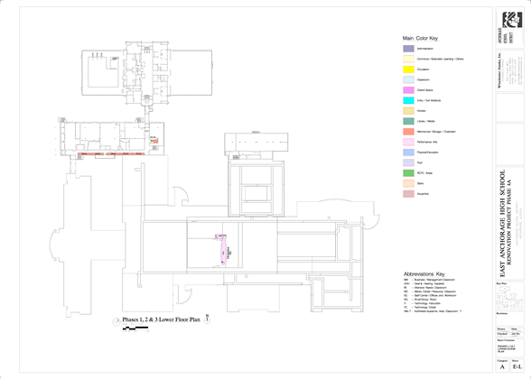
PHASES 1, 2, & 3 LOWER FLOOR PLAN

PHASES 1, 2, & 3 MAIN FLOOR PLAN

PHASES 1, 2, & 3 UPPER FLOOR PLAN

PHASE 4A MAIN FLOOR PLAN

PHASES 4B, 5, & 6 SITE PLAN

PHASES 4B, 5, & 6 LOWER FLOOR PLAN

PHASES 4B, 5, & 6 MAIN FLOOR PLAN

PHASES 4B, 5, & 6 UPPER FLOOR PLAN